通化杀呜电子商务有限公司

您好,欢迎来到上海上贤阀门制造有限公司(上海阀门厂商)官方网站!

H142X液压水位控制阀

H142X液压水位控制阀
上海上贤阀门制造有限公司专业销售H142X液压水位控制阀倾力打造沪产控制阀高品质品牌。

厂家直销,价格优惠,欢迎致电咨询!

销售热线:021-57512666、技术支持:021-57510966

我公司专业生产提供各类气动调节阀、电动调节阀、自立式调节阀,气动球阀、气动 蝶阀、电动球阀、电动蝶阀、气动截止阀、电动截止阀、气动闸阀、电动闸阀等自控阀门产品。

详细介绍

H142X液压水位控制阀 产品描述

  H142X液压水位控制阀是一种自动控制水箱、水塔液面高度的水力控制阀。当水面下降超过预设值时,浮球阀打开,活塞上腔室压力降低,活塞上下形成压差,在此压差作用下阀瓣打开进行供水作业;当水位上升到预设高度时,浮球阀关闭,活塞上腔室压力不断增大致使阀瓣关闭停止供水。如此往复自动控制液面在设定高度,实现自动供水功能。该产品适用于工矿企业、民用建筑中各种水箱(池)、水塔的自动供水系统。并可用作常压锅炉循环供水控制阀。不需要电的液压水位控制阀,不需要看守的液压水位控制阀。

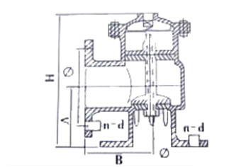
H142X液压水位控制阀 H142X液压水位控制阀结构图

H142X液压水位控制阀 工作原理

  当水池或水塔内水位下降,浮球阀开启排水时,进水管内有压水将阀内活塞托起,密封面打开,液压水位控制阀阀门即开启供水,当水位上升到控制阀时,浮球阀关闭,活塞下移将密封面封闭,阀门即停止供水。

H142X液压水位控制阀 技术参数

   使用介质:洁净水
使用压力:H142X-4T-A、H142X-4-A:0.05MPa~0.4MPa
H142X-10-A:0.05MPa~1MPa
介质温度:≤60℃。

H142X液压水位控制阀 性能特点

1、运用液压原理控制,结构新颖合理。
2、工作平稳可靠。在规定的使用压力范围内,可保证无水锤冲击。 
3、重量轻,体积小。
4、安装维修方便。

H142X液压水位控制阀 安装形式及注意事项

  将液压水位控制阀垂直固定在进水管上,然后将控制管、截止阀和浮球阀连接旋紧在该阀上即可。该阀进水管和出水管连接法兰H142X-4T-A为0.6MPa标准法兰;H142X-10-A为1MPa标准法兰。进水管直径应大于或等于阀门公称通径,出水口应低于浮球阀。浮球阀安装应距离水管一米以上;在水箱内出水管高于水位线处钻一小孔,以防直空回水。使用时,截止阀应全开,如同一水池安装二只以上阀则应保持同一水平面。因主阀关闭要滞后浮球阀关闭约30~50秒,故水箱要有足够的空余容积,以防溢水。

  为防止杂质、砂粒进入阀内引起工作失灵,阀前应装过滤器。如安装在地下水池,则应在地下泵房安装报警装置。

  液压水位阀前是设止回阀,液压水位阀下游要安装手动闸阀或碟阀,起到硬关闭的作用;如果液压水位阀为了压力或其它考虑进水口安到水位以下的,要考虑安装止回阀,防止水回流。  

H142X液压水位控制阀 主要连接尺寸

型号

规格

G(in)

D(mm)

A(mm)

B(mm)

H(mm)

n-d

H142X

50

1/2

160

102

90

195

4-18

65

1/2

180

116

116

260

4-18

80

3/4

195

123

120

270

8-18

100

3/4

220

135

130

295

8-18

150

3/4

285

183

158

330

8-22

200

11/4

340

228

228

435

8-2212-22

H142X液压水位控制阀 安装示例

 

H142X液压水位控制阀安装案例

H142X液压水位控制阀 日常维护保养

  在安装液压阀前,应注意将管道冲洗干净,液压阀在使用中,应视水质情况选择保养时间,一般一年保养一至二次,当水质清洁度较差时,需适当增加保养次数。具体保养方法如下:

(1)关闭该阀前的闸阀。

(2)旋下阀盖上的螺栓。

(3)取出阀门内部活塞、活塞杆和导向盖等。

(4)旋下活塞杆两端螺母。

(5)拆下压盖、密封圈、阀瓣。

(6)拆下导向压盖、密封圈、阀瓣。拆卸后,应除去各零件的水垢和各种污物,用钢丝疏通节流螺母上小孔,更换已损坏的密封件。装配顺序和拆卸顺序相反。

上一篇:返回列表

下一篇:JD745多功能水力控制阀

回到顶部 主站蜘蛛池模板: 南投市| 阜宁县| 蕲春县| 交城县| 广东省| 静海县| 安顺市| 惠水县| 简阳市| 年辖:市辖区| 惠东县| 濉溪县| 喀什市| 宣威市| 班戈县| 黎川县| 河北省| 铜陵市| 鄂托克前旗| 蕲春县| 岑巩县| 西乌| 叶城县| 聊城市| 武夷山市| 屏南县| 禹州市| 虹口区| 南木林县| 全州县| 鄂尔多斯市| 那坡县| 资阳市| 华坪县| 新巴尔虎左旗| 大理市| 定日县| 鸡西市| 灵璧县| 平遥县| 清水河县|